装修、找房,上靓屋网!
东莞·深圳·香港 首页 装修指引 为您规划 装饰材料 家具饰品 房产中介 三维实景 公司名录 设计师 团购

± 3房2厅2卫 -誠一裝飾

± Al 4房2厅2卫 -誠一裝飾

± 3房1厅1卫 -创点装饰

± 3房2厅2卫 -誠一裝飾

± 3房2厅2卫 -创点装饰

± 3房2厅1卫 -卓林设计

± lj 3房2厅2卫 -华正装饰

± 4房2厅2卫 -华正装饰

面积 平方
格局

套型
85243.10.8742
金珠园效果图 客厅

n 烤漆橱柜如何清... 
n 室内门的选购保... 
n 陶瓷市场热门趋... 
n ... 
n ... 

更多内容î 
浏览次数:11037

黄逸凡

n韦能速 独立设计 ...
n郑俊雄 空间装饰 ...
npaok 独立设计 ...
n许远111 独立设计 ...
n李梅 巧匠装饰 ...

更多内容î 

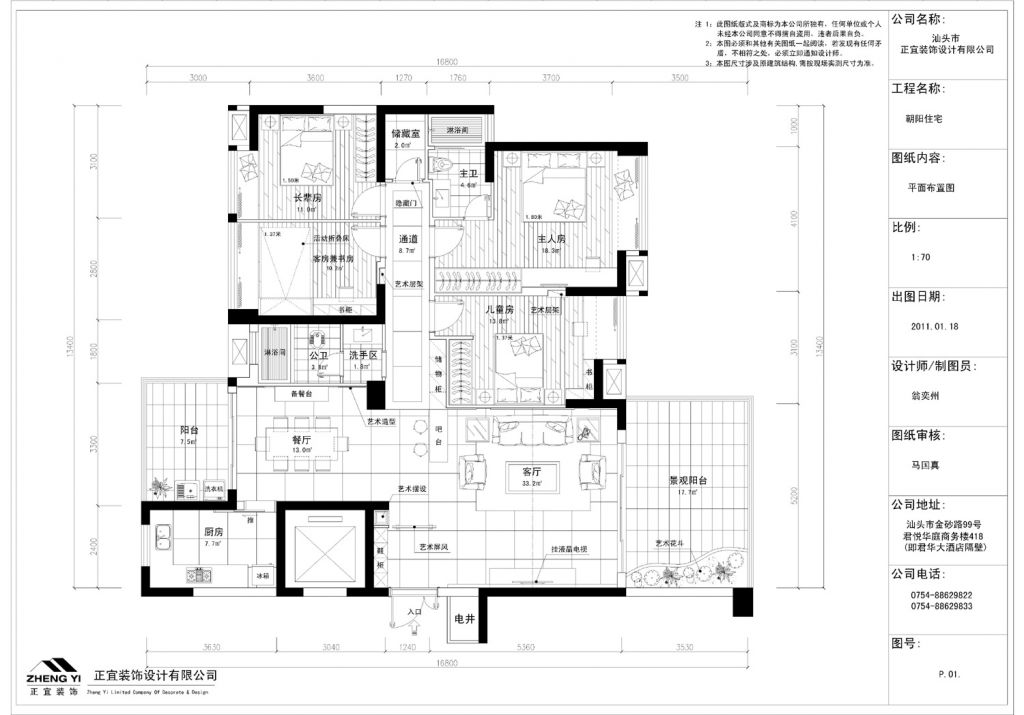
业主: 物业名称:潮阳 面积:181平方 格局:4房2厅2卫 总浏览:5122 次

设计要求/设计说明:

1. 您会怎样设置使用空间?,客厅,餐厅,主人房,客人房,小孩房,老人房
   2. 您有小孩吗 二男小孩的年龄:3-7岁
   3. 家里长住人口?,丈夫,妻子,小孩,二个老人家,其它
   4. 常有朋友来家吃饭,每次人数?常有朋友来家吃饭,每次人数5个以上
   5. 您想花多少钱来装修呢?10万以上
   6. 您想把厨房设计成封闭式
   7. 您家里的储物空间尽可能的多设储物柜
   8. 您家里的阳台,您会:一个都不封
   9. 洗衣机位的考虑考虑放在阳台上,并从厨房接水管到阳台
   10.您的房子的结构是:可改动部分内墙的框架结构
   11. 您的其他设计要求:简单大方,时尚奢华

设计单位:汕头正宜装饰设计有限公司

电话:0754-88629822

设计师:翁奕州




设计前平面图(点击图片看大图)





设计后平面图(点击图片看大图)


返回


联系 houseABC.com|服务条款|人才加盟
粤ICP备05074238号  广东省通讯管理局
服务热线:0754-8887 2022   靓屋网设计群:26228847   靓屋网业主群:58031376    装修咨询: